

There are parts of Zagreb where many unused loft spaces can be found which are usually of the joint ownership. Often the tenants are not able to agree how to best use such a premise or would it be better to sell it. But, the case we are talking about had a happier end – the tenants in a residential building have decided to sell the neglected loft and several adjacent auxiliary premises and to invest the money in building in a lift.
The space is suitable for conversion, ideally oriented south- and eastward with an exit to a common roof terrace, in a well maintained building raised in early 60-ies of the last century. The only limitations for the flexible plan are vertical installations and closely positioned chimneys and ventilation emerging from the storeys below.
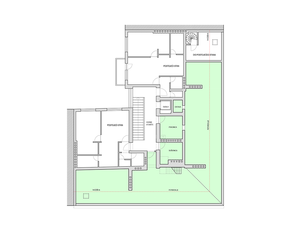
This is how the present situation looks like:
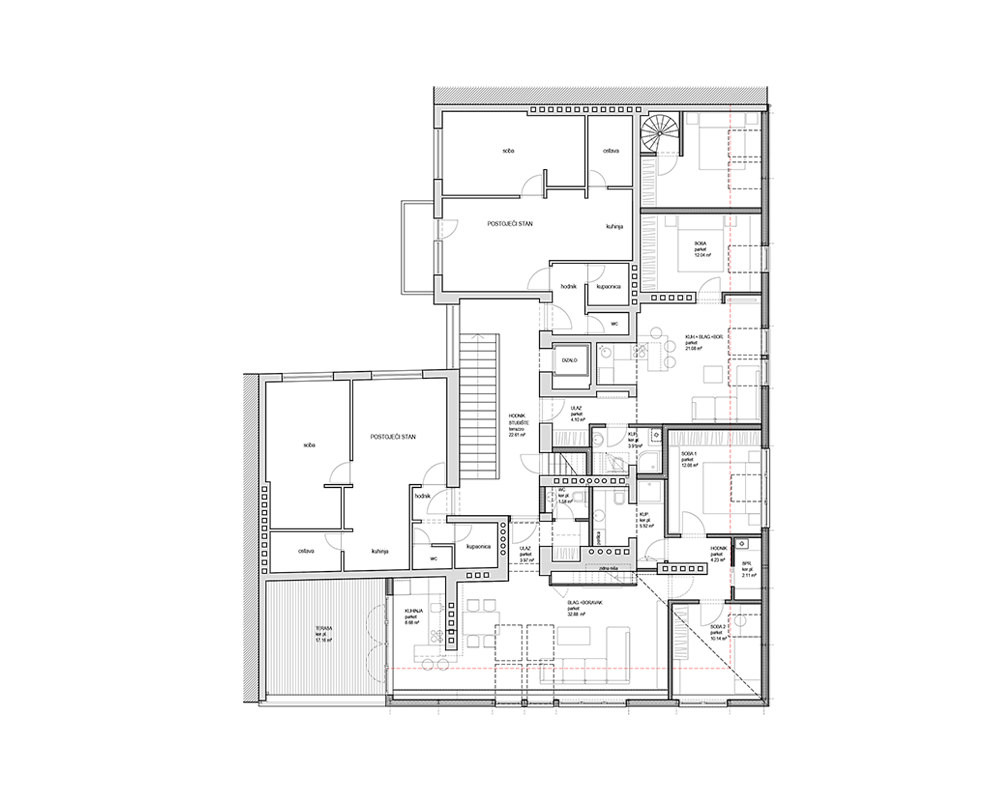
A new owner has decided to convert the loft into two flats, the large one to dwell in it and the small one to arrange as an office. The bigger flat should have two bedrooms, the biggest possible living-room and spacious terrace/winter garden. The interior design of the smaller flat should be suitable for an office but also have a logical ground-plan for potential future two-room flat. In addition, the owner wanted the flats to be higher than the original premises so that, with the permission of all other tenants, he decided to remove entire existing wooden roof structure and to build a new one on elevated walls. On the other side, tenants wanted to have in return a new exit from the staircase to roof terrace, and they got it.
For this operation we have made preliminary and final designs and obtained the building permit.
Originally, the whole space consisted of loft covered by single-pitched roof and common premises – former laundry-room, drying-room and store-room.
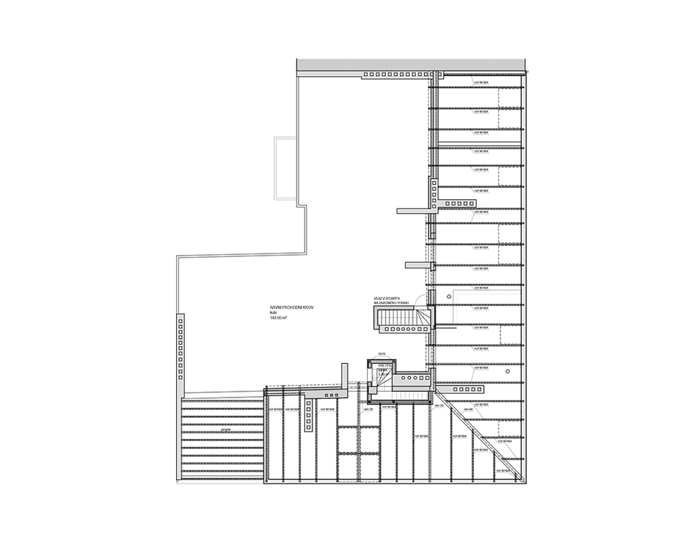
Precarious statics of the building and large span of the roof structure directed us towards an unusual solution – towards construction of a new steel roof structure. The elevated wall would also be steel structure. Such a solution permits the building statics to be less loaded and enables faster working process without masonry and concretion. Apart from the statics, the tenants’ nerves would be less loaded too and this is very important for the future good neighbourly relations. However, it must be said that such a structure is some 30% more expensive than standard wooden structure of pitched roof.
Steel roof structure and adequate elevated wall will be filled up with thermal insulation material and lined with cement-fibre and silicate fireproof panels.
The following operations are yet to be performed: new openings in ceiling panels and bearing brick walls, dry floating floor and new gypsum sheathing partition walls, water supply and discharge pipes and all final construction works related to interior design. Considering that this is actually a reconstruction of existing building, we expect some additional unpredictable works.
This is how it will look:
